Web Analytics Made Easy - Statcounter
where is flamingo fl Kids a-line gathered dress 4-10| camilla au – camilla

where is flamingo fl Kids a-line gathered dress 4-10| camilla au – camilla

First look – pense laranja

If you are looking for Florida and the Gulf of Mexico, 1975 you've visit to the right web. We have 35 Pics about Florida and the Gulf of Mexico, 1975 like At the End of the Road - Flamingo, FL - Gate to Adventures, Grupo Sion acquires 9-acre Flamingo Waterpark resort in Kissimee for and also CJ Corki. Read more:

Florida And The Gulf Of Mexico, 1975

Florida and the Gulf of Mexico, 1975 fcit.usf.edu

gulf mexico florida map maps 1975 usf fcit

Flamingo Clipart Flamingo Feather, Flamingo Flamingo Feather

Flamingo clipart flamingo feather, Flamingo flamingo feather webstockreview.net

flamingo ftestickers flamenco alena cute vertebrate flamingos webstockreview flamencos tumblr emojipng transparentpng pngegg salve clique pinclipart pngwing hiclipart drawing

Flamingo, FL Named One Of The Best Places To Visit In 2024

Flamingo, FL Named One Of The Best Places To Visit In 2024 secretmiami.com

At The End Of The Road - Flamingo, FL - Gate To Adventures

At the End of the Road - Flamingo, FL - Gate to Adventures gatetoadventures.com

flamingo road fl end

2016 Prestige 680 For Sale | West Palm Beach, FL, US | JBYS

2016 Prestige 680 For Sale | West Palm Beach, FL, US | JBYS jbys.com

1251 Sawgrass Corporate Pky, Sunrise, FL 33323 - Flex For Lease | LoopNet

1251 Sawgrass Corporate Pky, Sunrise, FL 33323 - Flex for Lease | LoopNet www.loopnet.com

Customer Appreciation Gallery – Smith Craft Products

Customer Appreciation Gallery – Smith Craft Products smithcraftproducts.com

Flamingo Lake RV Resort - 14 Photos, 3 Reviews - Jacksonville, FL

Flamingo Lake RV Resort - 14 Photos, 3 Reviews - Jacksonville, FL www.roverpass.com

Flamingo Houseboat | Teaser - YouTube

Flamingo Houseboat | Teaser - YouTube www.youtube.com

First Look – Pense Laranja

First Look – Pense Laranja www.penselaranja.com.br

DISCOVER THE FAN FAVORITE FLAMINGO | Florida Real Estate - GL Homes

DISCOVER THE FAN FAVORITE FLAMINGO | Florida Real Estate - GL Homes www.glhomes.com

flamingo

Maps - Everglades National Park (U.S. National Park Service)

Maps - Everglades National Park (U.S. National Park Service) www.nps.gov

everglades flamingo map area national park maps campground florida state detail marina npmaps station parks

4663 Chumuckla Hwy, Pace, FL 32571 - Land For Sale | LoopNet

4663 Chumuckla Hwy, Pace, FL 32571 - Land for Sale | LoopNet www.loopnet.com

First Look – Pense Laranja

First Look – Pense Laranja www.penselaranja.com.br

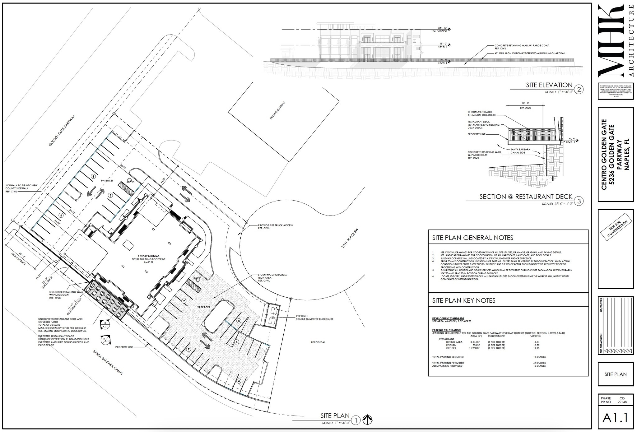
5236 Golden Gate Parkway, Naples, FL 34116 - CENTRO Golden Gate City

5236 Golden Gate Parkway, Naples, FL 34116 - CENTRO Golden Gate City www.loopnet.com

Flamingo 2021: Best Of Flamingo, FL Tourism - Tripadvisor

Flamingo 2021: Best of Flamingo, FL Tourism - Tripadvisor www.tripadvisor.com

flamingo

CJ Corki

CJ Corki cjcorki.squarespace.com

Kids Shift Dress 4-10, Flight Of The Flamingo | CAMILLA AU – CAMILLA

Kids Shift Dress 4-10, Flight Of The Flamingo | CAMILLA AU – CAMILLA au.camilla.com

Resources - Wilson Equipment Etc.

Resources - Wilson Equipment Etc. weefl.com

Golf US Open 1996 Oakland Hills Titleist Golf Balls One Sleeve Of 3 | EBay

Golf US Open 1996 Oakland Hills Titleist Golf Balls One Sleeve Of 3 | eBay www.ebay.com

Flamingo Resort Map By Divi Resorts - Issuu

Flamingo Resort Map by Divi Resorts - Issuu issuu.com

flamingo divi

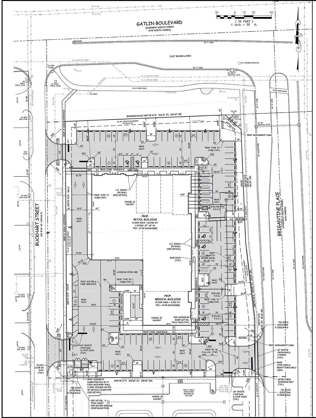
1908 SW Gatlin Blvd, Port Saint Lucie, FL 34953 - Retail/Medical Spaces

1908 SW Gatlin Blvd, Port Saint Lucie, FL 34953 - Retail/Medical Spaces www.loopnet.com

3585 Marquette Ave, Sanford, FL 32773 - Land For Sale | LoopNet

3585 Marquette Ave, Sanford, FL 32773 - Land for Sale | LoopNet www.loopnet.com

3501 E Busch Blvd, Tampa, FL 33612 - SELLER FINANCING AVAILABLE | LoopNet

3501 E Busch Blvd, Tampa, FL 33612 - SELLER FINANCING AVAILABLE | LoopNet www.loopnet.com

Flamingo Florida Map Hi-res Stock Photography And Images - Alamy

Flamingo florida map hi-res stock photography and images - Alamy www.alamy.com

Kids A-Line Gathered Dress 4-10| CAMILLA AU – CAMILLA

Kids A-Line Gathered Dress 4-10| CAMILLA AU – CAMILLA au.camilla.com

NWT FRESH PRODUCE SOLID COLOR SASHA DRAPE TEE.ON FLAMINGO....FLATTERING

NWT FRESH PRODUCE SOLID COLOR SASHA DRAPE TEE.ON FLAMINGO....FLATTERING www.ebay.com

2004 Regal 3560 Commodore For Sale | Muskegon, MI, US | JBYS #B3244

2004 Regal 3560 Commodore For Sale | Muskegon, MI, US | JBYS #B3244 jbys.com

Kids Shift Dress 4-10, Flight Of The Flamingo | CAMILLA AU – CAMILLA

Kids Shift Dress 4-10, Flight Of The Flamingo | CAMILLA AU – CAMILLA au.camilla.com

Best 12 Site Map For Lake Burden In Windermere Fl – Artofit

Best 12 Site map for lake burden in windermere fl – Artofit www.artofit.org

Kids A-Line Gathered Dress 4-10| CAMILLA AU – CAMILLA

Kids A-Line Gathered Dress 4-10| CAMILLA AU – CAMILLA au.camilla.com

Modena 22 - MUVE Architecture

Modena 22 - MUVE Architecture muvearch.com

Skipper Bob: Cruising The Gulf Coast

Skipper Bob: Cruising the Gulf Coast store.asa.com

Domenic DeAmicis Resume | PDF

Domenic DeAmicis Resume | PDF www.slideshare.net

Grupo Sion Acquires 9-acre Flamingo Waterpark Resort In Kissimee For

Grupo Sion acquires 9-acre Flamingo Waterpark resort in Kissimee for aaplonline.com

1251 sawgrass corporate pky, sunrise, fl 33323. Flamingo clipart flamingo feather, flamingo flamingo feather. Flamingo houseboat